


200 730 ₽/м²
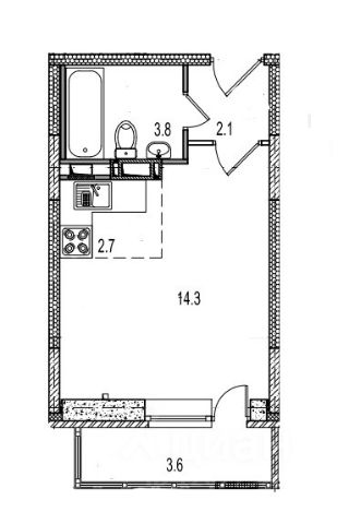
Семейная ипотека 6% Продается квартира по адресу МО, гор Ногинск, ул Юбилейная, дом 4Б. Новый 13-15-17-ти этажный дом 2024 года постройки, входящий в состав жилого комплекса "Истомкино". Дом сдан в эксплуатацию. Предчистовой ремонт "white box" входит в стоимость. Первоначальный взнос можно оплатить мат капиталом Жилой комплекс "Истомкино" имеет красивую благоустроенную территорию с детскими и спортивными площадками, освещаемой парковкой для автомобилей (100 м от дома). Заканчивается строительство детского садика на 170 мест. Прямой выезд на Горьковское шоссе в сторону Москвы, 10 мин до центра Ногинска. Рядом поликлиники, школы, парки, магазины, торговые центры Леруа Мерлен, Okey и др. Спортивный комплекс "Дельфин" с тренажерным залом и бассейном, футбольный стадион - 10 мин пешком от дома. В пешей доступности зеленая Истомкинская роща и Ногинский парк культуры и отдыха.













































































































