Первичная продажа



С отделкой
сдача ГК: 2 кв. 2024 года
Ногинск
9 минут на транспорте
5 600 000 ₽
198 582 ₽/м²
Семейная ипотека 6%
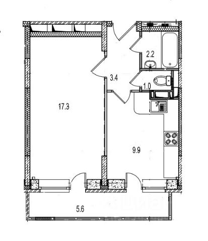
Продается квартира по адресу МО, гор Ногинск, ул Юбилейная, дом 4Б.
Новый 13-15-17-ти этажный дом 2024 года постройки, входящий в состав жилого комплекса "Истомкино". Дом сдан в эксплуатацию.
Предчистовой ремонт "white box" входит в стоимость. Первоначальный взнос можно оплатить мат капиталом
Жилой комплекс "Истомкино" имеет красивую благоустроенную территорию с детскими и спортивными площадками, освещаемой парковкой для автомобилей (100 м от дома). Заканчивается строительство детского садика на 170 мест.
Прямой выезд на Горьковское шоссе в сторону Москвы, 10 мин до центра Ногинска.
Рядом поликлиники, школы, парки, магазины, торговые центры Леруа Мерлен, Okey и др.
Спортивный комплекс "Дельфин" с тренажерным залом и бассейном, футбольный стадион - 10 мин пешком от дома.
В пешей доступности зеленая Истомкинская роща и Ногинский парк культуры и отдыха. Продается 1-комнатная квартира на 5 этаже в Ногинске.






















































































