Первичная продажа



С отделкой
сдача ГК: 2 кв. 2024 года
Ногинск
9 минут на транспорте
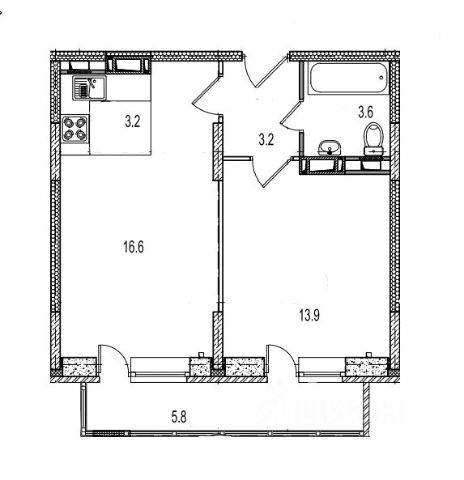
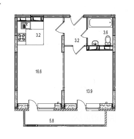
8 300 000 ₽
178 112 ₽/м²
Квартира с предчистовой отделкой "white box" от Застройщика. Семейная ипотека 6%!
Продается квартира по адресу город Ногинск, ул. Юбилейная, дом 4Б.
Новый 13-15-17-ти этажный дом 2024 года постройки, входящий в состав жилого комплекса "Истомкино". Дом сдан в эксплуатацию.
Первоначальный взнос можно оплатить материнским капиталом
Жилой комплекс "Истомкино" имеет красивую благоустроенную территорию с детскими и спортивными площадками, освещаемой парковкой для автомобилей (100 м от дома). Заканчивается строительство детского садика на 170 мест.
Прямой выезд на Горьковское шоссе в сторону Москвы, 10 мин до центра Ногинска.
Рядом поликлиники, школы, парки, магазины, торговые центры Леруа Мерлен, Okey и др.
Спортивный комплекс "Дельфин" с тренажерным залом и бассейном, футбольный стадион - 10 мин пешком от дома.
В пешей доступности зеленая Истомкинская роща и Ногинский парк культуры и отдыха.



















































































